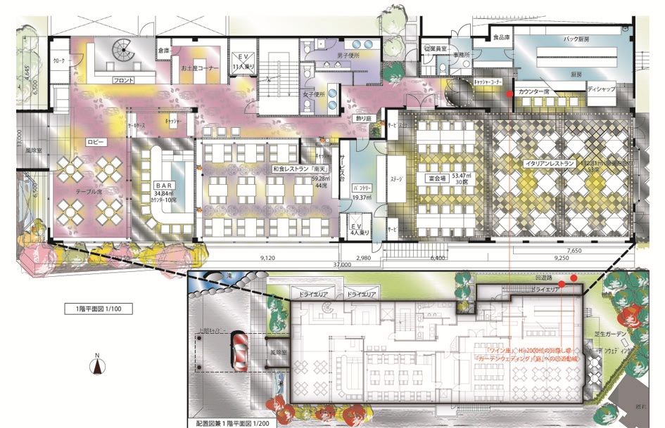
S温泉・プロジェクト