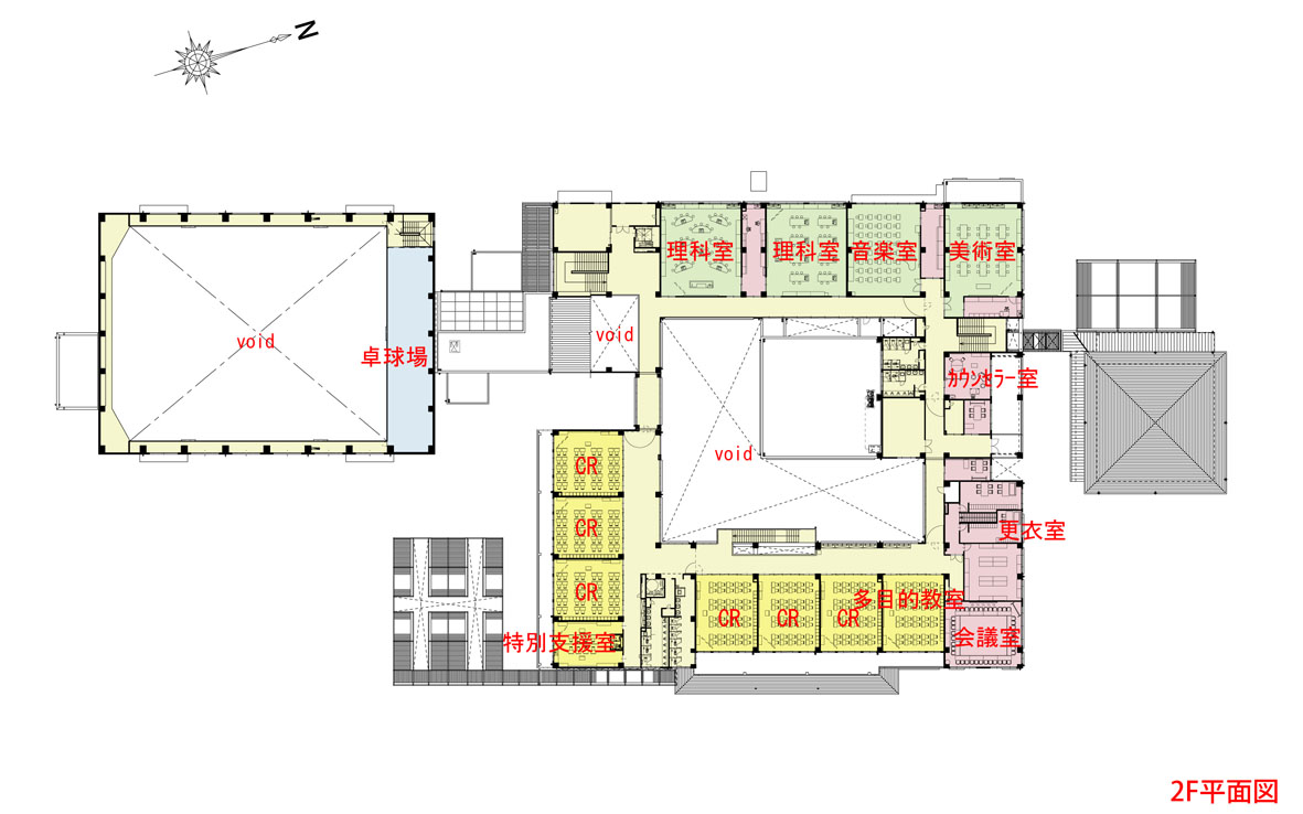
ã–ì“ì’†ŠwZ

ŽOdŒ§ˆÉ‰êŽs
’†ŠwZ
RC{S‘¢@’nã2ŠK
•~’n–ÊÏ@28,223.59‡u
Œš’z–ÊÏ@5,549.35‡u
‰„°–ÊÏ@7,831.57‡u
•½¬24”N4ŒŽ1“úvH