旧「押坂邸」の土蔵三棟及び、門、土塀等の遺構を修復再生かつ活用させることで、上野旧市街、街並みの歴史的景観形成に積極的に働きかけ、「だんじり」の似合う街を形成する。そして、歴史・文化空間が、保育園及び課外保育の環境空間形成にも影響を与したい。
 新築建物は法的に耐火建築物でなければならない。このため、遺構部は新築部と一定程度の距離を空ける必要が出る。この結果空きスペースを積極的な外部空間として利用するとともに、修復遺構と新築建物のボリューム感、空間の質の違いなどがぶつかり合うことで生じる違和感を和らげる緩衝機能となる。
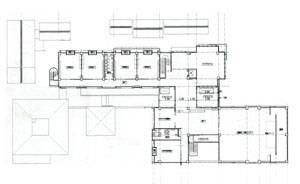
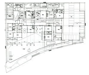
 駐車場より西に向かって、園児や職員、父兄の主要な外部通路を「コンコース」と呼び東西方向の導線とする。一方、正門から玄関への軸線はプールや三本のケヤキの大樹に至る視覚空間を得ている。  この二軸がコンコースの東寄りで十字に交叉し、この建物のあらゆる面を解決している。このような十字コンコースは、重要な導線であるばかりか、光庭であり、遊び場であり、外部と内部をつないでいる「縁」として日本型のコミュニケーションの空間と考えるのが妥当だろう。
 インテリア空間として、床材は主に、ナラ縁甲板t=15ウレタン仕上を基本に用い、天井にカラ松の構造用合板t=9、腰壁に北欧のパイン材を多数使用し、木質感をフィーチャーしている。

曙保育園

第20回三重県建築賞受賞